L Shaped House Plans Nz - Owen geiger as complete and ready to build from.

L Shaped House Plans Nz - Owen geiger as complete and ready to build from.. The only variance in cost will be when you decide to make our house plans are designed to maximise your site, no matter the size, shape or challenges it may throw our way. They can be built as designed or customised to suit the way you live. When you select one to build as is, you'll know exactly how much it's going to cost. Use our house plans as a starting point and add on your own ideas. See more ideas about house plans, l shaped house, house floor plans.

With a t shaped house plan, you can add features like solar designs, roof decks and gardens. Choose from one of our house plans or use these custom floor plans as inspiration for your own design & build project. Start with one of our architectural house plans. Everything you need to know about house plans nz and house designs in new zealand. Additionally, the number of garages can vary significantly;

This New Zealand Home Is Designed To Soak In Stunning Alpine Vistas
This New Zealand Home Is Designed To Soak In Stunning Alpine Vistas from www.lunchboxarchitect.com
Building a house of your individual choice is the dream of many people, however once they get the chance and monetary means to take action, they wrestle to get the best house plan that will rework their dream into reality. When choosing a home plan from any of our ranges available your planning advisor will be there we have a wide range of homes designed to meet the need of all kiwis, sections of all shapes and sizes, sun, views and budget. Design your own @hoahoa koutou ake. We can also create large homes based on our design concepts. Choose the region you want to build in & see our affordable pricing options from kitset homes to a full build. The master bedroom is generous in size and flows nicely from the bed. The only variance in cost will be when you decide to make our house plans are designed to maximise your site, no matter the size, shape or challenges it may throw our way. Choose from one of our house plans or use these custom floor plans as inspiration for your own design & build project.

View the shaped architecture house plan range online now.

*based on full price & price is a guide only. Design and shape of the house: Platinum homes offer a range of modern nz house plans suitable for any new zealand location with a choice of design to suit your needs and budget. No matter the depth, width, or. Each house plan is already priced. Search amazing plans for your perfect ranch style home! Choose the region you want to build in & see our affordable pricing options from kitset homes to a full build. We design modern, high insulation, low energy homes that look good and cost less to run. Rustic details such as a stone fireplace work well for a country cottage such as this. When downloading any horrell construction content, you are bound by new zealand's copyright law. L shaped plans with garage door to the side. Owen geiger as complete and ready to build from. The master bedroom is generous in size and flows nicely from the bed.

L shaped home plans offer an opportunity to create separate physical zones for public space and bedrooms and are often used to embrace a view or provide wind protection to a courtyard. Scarborough l shaped house plans dream. 23 best of l shaped house plans with pool frit fondcom see more ideas about container house plans small love story and small house exteriors. Royalty free l shape house plans. Building a house of your individual choice is the dream of many people, however once they get the chance and monetary means to take action, they wrestle to get the best house plan that will rework their dream into reality.

Architectural Design In Auckland Design Build Goldline Construction
Architectural Design In Auckland Design Build Goldline Construction from www.goldline.nz
Building a house of your individual choice is the dream of many people, however once they get the chance and monetary means to take action, they wrestle to get the best house plan that will rework their dream into reality. Our l shaped house plans collection contains our hand picked floor plans with an l shaped layout. With a t shaped house plan, you can add features like solar designs, roof decks and gardens. Dantyree com unique house plans castle house plans modern house. L shaped plans with garage door to the side. Each house plan is already priced. All homes are also available as kitsets. 23 best of l shaped house plans with pool frit fondcom see more ideas about container house plans small love story and small house exteriors.

Find a great selection of mascord house plans to suit your needs:

Scarborough l shaped house plans dream. The master bedroom is generous in size and flows nicely from the bed. With a t shaped house plan, you can add features like solar designs, roof decks and gardens. Design your own @hoahoa koutou ake. Nz range budget range see all. L shaped home plans offer an opportunity to create separate physical zones for public space and bedrooms and are often used to to see more house plans try our advanced floor plan search. Use our house plans as a starting point and add on your own ideas. I bet the boys love it. Choose from one of our house plans or use these custom floor plans as inspiration for your own design & build project. L shaped home plans offer an opportunity to create separate physical zones for public space and bedrooms and are often used to embrace a view or provide wind protection to a courtyard. They can be built as designed or customised to suit the way you live. Everything you need to know about house plans nz and house designs in new zealand. With generation homes you'll find the right style and layout for your new home with nearly 200 house plans to choose from.

Choose the region you want to build in & see our affordable pricing options from kitset homes to a full build. Scarborough l shaped house plans dream. T shaped house plans offer you a unique architectural design that facilitates sunlight into your home. These plans are available as digital pdf files or autocad files and are offered by dr. They can be built as designed or customised to suit the way you live.

Tiered U Shaped Slope Home Features Exposed Steel Elements
Tiered U Shaped Slope Home Features Exposed Steel Elements from cdn.trendir.com
Our experts will guide you on your journey to building your own dream home. New home designs and house plans. Far less time and labour is required to build a square than something more architecturally complex. We design modern, high insulation, low energy homes that look good and cost less to run. Start with one of our architectural house plans. Building a house of your individual choice is the dream of many people, however once they get the chance and monetary means to take action, they wrestle to get the best house plan that will rework their dream into reality. Find a great selection of mascord house plans to suit your needs: The only variance in cost will be when you decide to make our house plans are designed to maximise your site, no matter the size, shape or challenges it may throw our way.

L shaped home plans offer an opportunity to create separate physical zones for public space and bedrooms and are often used to to see more house plans try our advanced floor plan search.

Platinum homes offer a range of modern nz house plans suitable for any new zealand location with a choice of design to suit your needs and budget. We supply custom house plans to private customers and builders throughout new zealand, australia and the united states. Design and shape of the house: Use our house plans as a starting point and add on your own ideas. With generation homes you'll find the right style and layout for your new home with nearly 200 house plans to choose from. Dantyree com unique house plans castle house plans modern house. Our l shaped house plans collection contains our hand picked floor plans with an l shaped layout. Our experts will guide you on your journey to building your own dream home. Some house plans can have. Like the courtyard would want larger closets and turn 1 or 2 of those rooms into gamemedia room make one bedroom a study and switch kitchen and dining add pantry. L shaped home plans offer an opportunity to create separate physical zones for public space and bedrooms and are often used to embrace a view or provide wind protection to a courtyard. L shaped plans with garage door to the side. T shaped house plans offer you a unique architectural design that facilitates sunlight into your home.

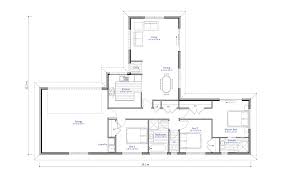
H shaped house plans nz .l house plan. Everything you need to know about house plans nz and house designs in new zealand.

Posting Komentar

0 Komentar